博多駅前藤井ビル
事業用ビル
博多駅徒歩7分!博多駅前3丁目の立地で駐車場69台完備のオフィスビル
博多駅前藤井ビルは、博多駅徒歩7分の賃貸オフィスビルです。1972年竣工。敷地内に駐車場を69台完備しております。天井高は1階280cm、2階260cmと高く、共用廊下も広いので、貸室内・共用部ともにゆとりがあります。通用口は24時間出入り可。明治町通りに面し、ビル前には東林寺があり、落ち着いたエリア。飲食店も複数利用可能です。
築年数を経ておりますが、空調機更新、大規模修繕工事、照明器具LED化、トイレ全面リニューアル工事を実施済みで、設備は充実しております。日祝日を除いて、管理人が常駐しております。
更新・修繕履歴

※ 2021年3月 トイレ・給湯室を更新
男女トイレ、給湯室を全面リユーアルいたしました
男子トイレ




女子トイレ




給湯室

※ 2019年9月 全館LED照明器具へ更新
専有部・共用部の照明器具をLED照明器具へ更新致しました


※ 2017年12月 大規模修繕を実施
外壁タイル補修・屋上防水工事等、正面玄関エントランス照明器具LED化、集合郵便受け交換

外壁タイル補修や洗浄により非常にきれいになりました

屋上防水





※ 2017年5月 空調機を省エネタイプへ全館更新致しました
空調機使用による電気料が更新前より3分の2程度に削減


建物概要
| 名称 | 博多駅前藤井ビル |
| 所在 | 福岡市博多区博多駅前3-10-24 |
| 交通 | JR博多駅 徒歩7分 |
| 敷地面積 | 2,458㎡ |
| 延床面積 | 3,655㎡ |
| 構造 | 鉄骨・鉄筋コンクリート造 |
| 階数 | 地下1階 地上10階(オフィスは地階1階から2階) |
| 竣工 | 1972年3月 |
| 設計管理 | 株式会社構造計画研究所 |
| 施工 | 株式会社竹中工務店 |
| 所有 | 藤井ビル株式会社 |
施設概要
| 天井高 | 1階:2,800mm 2階:2,600mm 地階:2,600mm |
| 空調設備 | 個別空調 |
| 給湯 | 1,2階に電気給湯器設置 |
| セキュリティ | 機械警備 24時間入退館可能 |
| エレベーター | なし |
| 荷揚げリフト | 500kg積載可能 |
| 駐車場 | 69台収容(タワー型・機械式・平面の3箇所合計台数) |
アクセス
- JR博多駅 徒歩7分
- 西鉄バス 駅前四丁目停 徒歩3分
空室情報
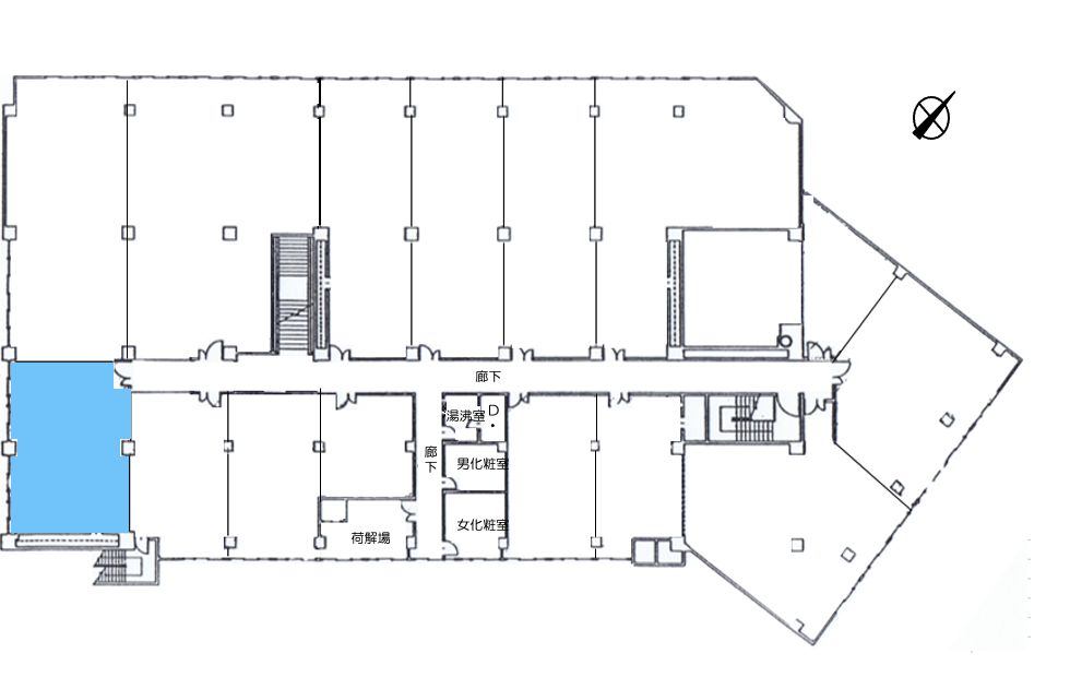
105号
| 面積 | 31.89坪 |
|---|---|
| 賃料 | 12,500円/坪(税別) |
| 共益費 | 2,500円/坪(税別) |
| 敷金 | 賃料の10ヶ月分 |
| 備考 | 2026/5/31解約、定期借家契約10年 |
209号
| 面積 | 23.16坪 |
|---|---|
| 賃料 | 11,500円/坪(税別) |
| 共益費 | 2,500円/坪(税別) |
| 敷金 | 賃料の10ヶ月分 |
| 備考 | 2026/4/30解約、定期借家契約10年 |









